Meetings
- At least once a year or on an as-needed basis
- Council Chambers, 250 W First Street, Prosper, TX.
Agendas & Minutes
Agendas are available prior to the meetings. Minutes are available following approval.
View Most Recent Agenda & Minutes
Members
- Town Council
- Collin County Commissioner, Susan Fletcher
- Prosper Economic Development Corporation Member, Ray Smith
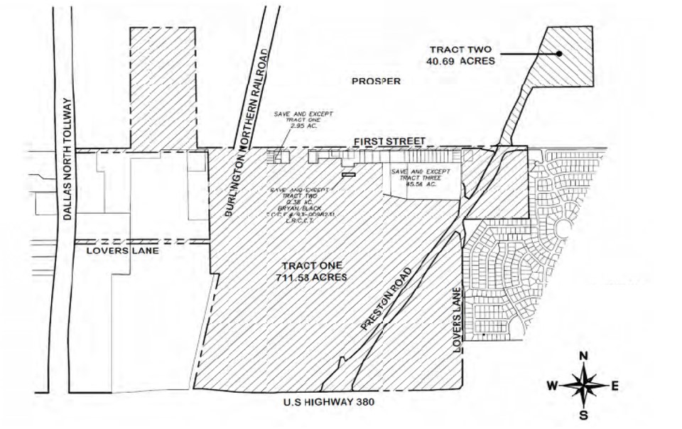
Overview
The Tax Increment Reinvestment Zone Board Number 1 (TIRZ 1) facilitates the decisions concerning the area of development at the northeast corner of US 380 and Preston Road.
TIRZ 1 Boundary Map (JPG)